Design 2D #2-116

Starting at $1,946
1,294 Sq. Ft. | 2 Bed | 2 Bath
Available Now

Features

  • Living Areas

    • Ceiling Fan
    • Full Wood Flooring
  • Home Attributes

    • Washer Dryer
    • Walk-In Closet
  • Premium Features

    • Corner Unit
  • 2D Diagram
  • 2D Diagram Furnished
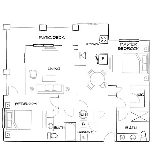
Brea Wendell Falls - Wendell, NC - Diagram

Design 2D

This two-bedroom floor plan features an open living area that connects directly to a private patio or deck, with the kitchen positioned nearby for easy entertaining. The primary bedroom includes a walk-in closet and private bathroom, while the second bedroom is located on the opposite side for added privacy, along with a convenient in-unit laundry area.

Brea Wendell Falls - Wendell, NC - Furnished Diagram

Design 2D

This two-bedroom floor plan features an open living area that connects directly to a private patio or deck, with the kitchen positioned nearby for easy entertaining. The primary bedroom includes a walk-in closet and private bathroom, while the second bedroom is located on the opposite side for added privacy, along with a convenient in-unit laundry area.

*Apartment prices, availability and terms are subject to change without notice. Apartment photos and floor plans are for illustrative purposes only. Actual square footage, layout, and property or apartment features may vary.